Portfolio
About
Press
Contact
Menu
Portfolio
About
Press
Contact
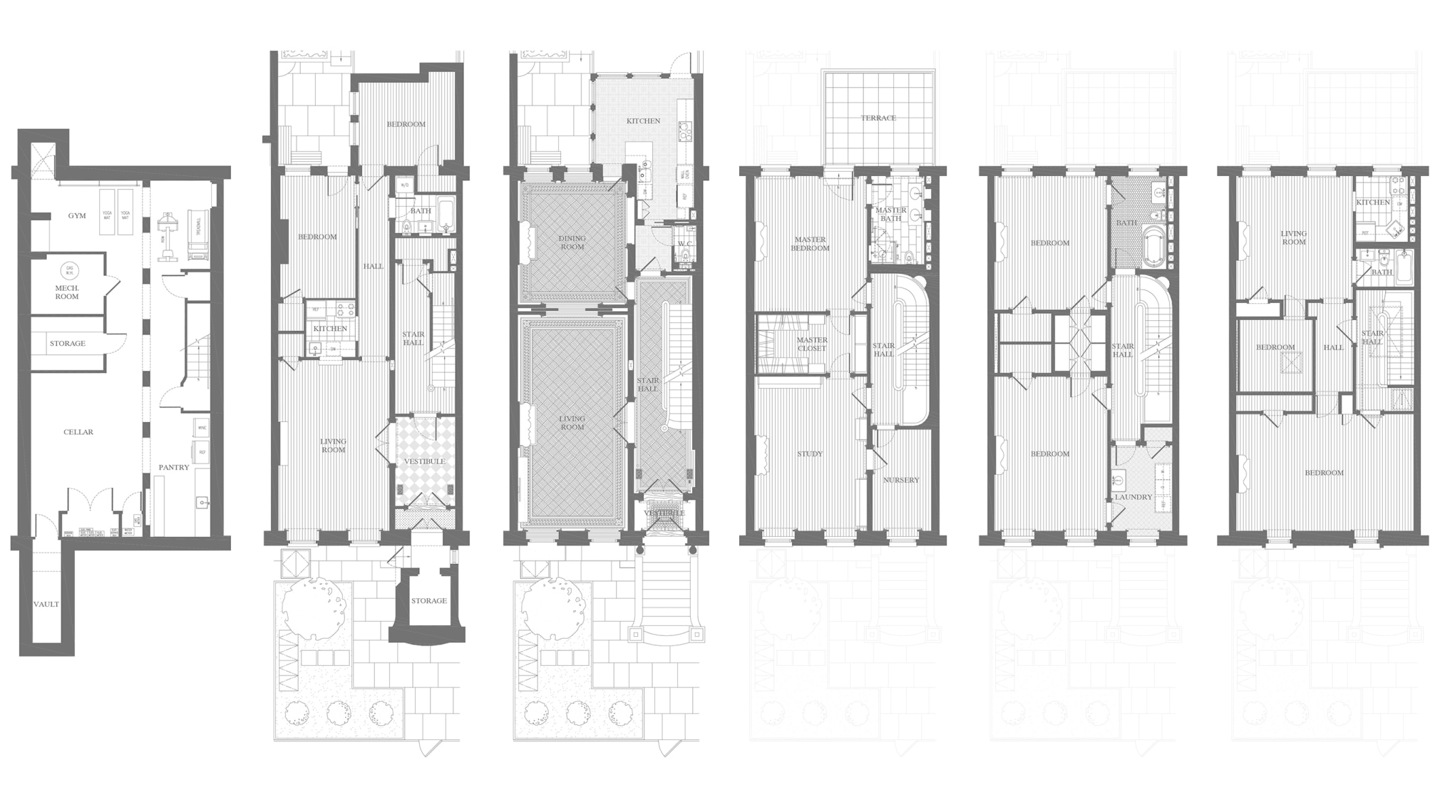
Brooklyn Brownstone
Slideshow
Thumbnails
Back
Information
Interiors in collaboration with Deborah Mariotti
Back To Top